Trilocale ristrutturato con terrazze
Foto immobile/Planimetrie
Caratteristiche immobile
Camere: 2
Bagni: 1
Riscaldamento: Centralizzato
Tipo Riscaldamento: Radiatori
Combustibile Riscald.: Metano
60 MQ
68 MQ comm.
Stato immobile: Ristrutturato
Classe ener.: G
Locali: 3
Balcone: SI, 2 balconi
Ascensore: SI
Condizionatore: Predisposizione
Piano: Terzo
Totale piani: 5
Tot. unità presenti: 10
Anno costr.: 1970
Anno ristr.: 2026
Cucina: A vista
Spese condominiali: 80 €
Spese rata: Mensile
Esposizione:
Nord Sud
Porta Blindata
Cancello Elettrico
Fibra Ottica
Accesso disabili
Presentazione
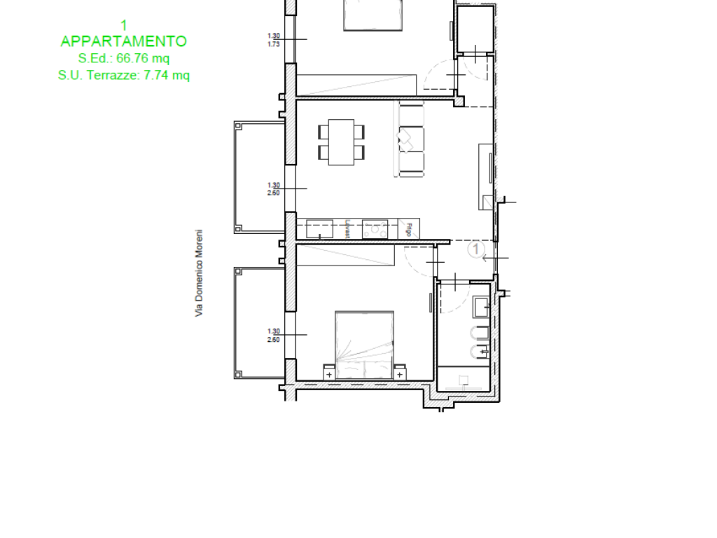
COVERCIANO - VIA MORENI
In quartiere residenziale vicino a tutti i servizi troviamo al terzo e penultimo piano di palazzina con ascensore, appartamento di 68 mq in fase di totale ristrutturazione con consegna prevista a fine aprile 2026. Internamente è composto da ingresso soggiorno con angolo cottura e balcone, due camere matrimoniali di cui una con accesso al secondo balcone, bagno finestrato e comodo ripostiglio. Termo-centrale con predisposizione aria condizionata. APE in definizione. Basse spese condominiali. Detrazioni fiscali fino a € 48.000.
In quartiere residenziale vicino a tutti i servizi troviamo al terzo e penultimo piano di palazzina con ascensore, appartamento di 68 mq in fase di totale ristrutturazione con consegna prevista a fine aprile 2026. Internamente è composto da ingresso soggiorno con angolo cottura e balcone, due camere matrimoniali di cui una con accesso al secondo balcone, bagno finestrato e comodo ripostiglio. Termo-centrale con predisposizione aria condizionata. APE in definizione. Basse spese condominiali. Detrazioni fiscali fino a € 48.000.
Dove si trova?
Contatto e richiesta informazioni
Invia una richiesta all'agenzia
Agente di riferimento
IM-952
Autorizzo il trattamento dei miei dati personali in base art. 13 del reg. eu 679/2016